1979 Mission + BART Plaza
DESCRIPTION

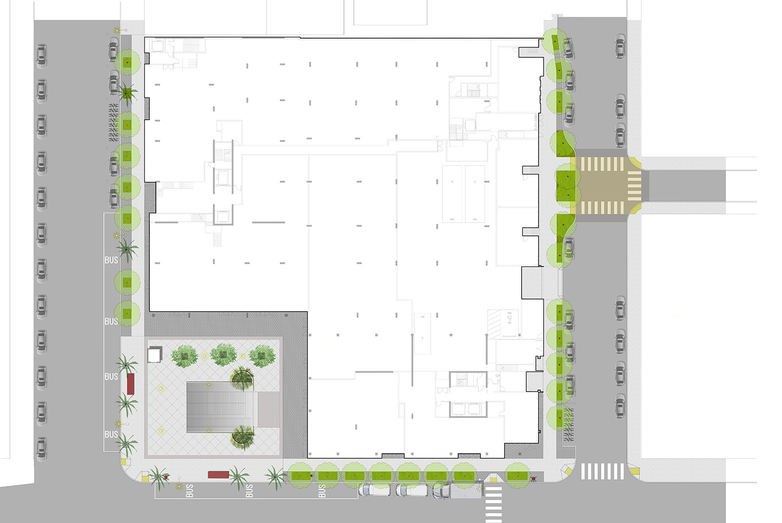
RHAA is working with SOM architects and Maximus Real Estate Partners on a mixed-use development with 351 mixed-income housing units, street-level retail spaces, and 30,000 square feet of common open space. The project is in San Francisco’s Mission District adjacent to the BART Station located on the northeast corner of 16th and Mission Streets. Two 10-story residential towers and a 5-story residential building will surround a large shaded garden courtyard, providing a place of refuge within this densely populated urban neighborhood. Rooftop gardens with outdoor lifestyle amenities, community gardens, and grand views of the city of San Francisco are also planned for each building. The project includes street-level retail facing both 16th and Mission Streets as well as glass store fronts wrapping two sides of the BART plaza. 

QUICK FACTS
  • 10-story mixed-income housing on 16th & Mission Street in San Francisco
  • Street-level retail will help activate the adjacent streetscapes and BART plaza.
SHARE THIS