Orange County Great Park Competition
DESCRIPTION

RHAA was selected from an original group of 40 of the most well known landscape architecture firms in the world.  Included on the RHAA team were the renowned French architect Jean-Paul Viguier, Peter Latz + Partners from Germany and the 2005 Cooper Hewitt Design award winner artist Ned Kahn.

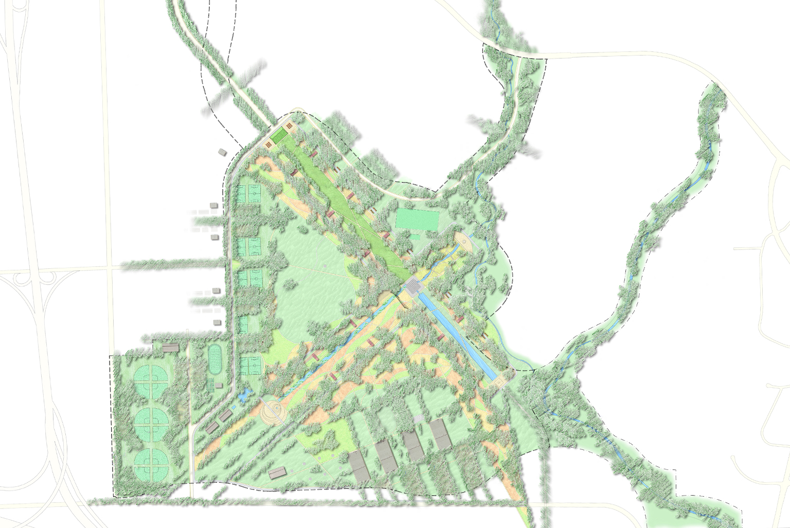
Among the three finalists, the RHAA Great Park concept was the most advanced in its approach to sustainability.  RHAA’s proposed design would create the first fully self-sustaining metropolitan park in the world.  Design features included innovative use of renewable geothermal energy to power all park features.  Polluted groundwater was cleansed through a series of channels and marshes running through the park.  Runways were ground and recycled to make road bed, buildings and signage.  Photovoltaic sculptures powered an alternative energy shuttle to carry visitors around the park.

The design also included transformation of existing hangars into a Visual Arts and Technology Center, a Multi-cultural Community Center, and Air and SpaceHistoryMuseum and an Extreme Sports Science Center.  Also included in the design was a 170-acre state of the art sports park with formal fields for over 30 sports.  A botanical garden, arboretum and agricultural demonstration gardens enhanced the visitor experience.  Four water plazas marked the ends of the two axes and were highlighted by environmental water features by artist Ned Kahn.

QUICK FACTS
  • RHAA was one of three finalists in an international competition to design the Orange County Great Park in Orange County, California
  • The 1,200 acre Great Park is being built on the site of the former El Toro Marine Corps Air Station and will be one of the largest metropolitan parks in the U.S
SHARE THIS